Annonce Appartement Bnt166049
1 225 000 € * (H.C.V)
Vente Appartement 3P toit terrasse - magnifique vue PARIS (75018)
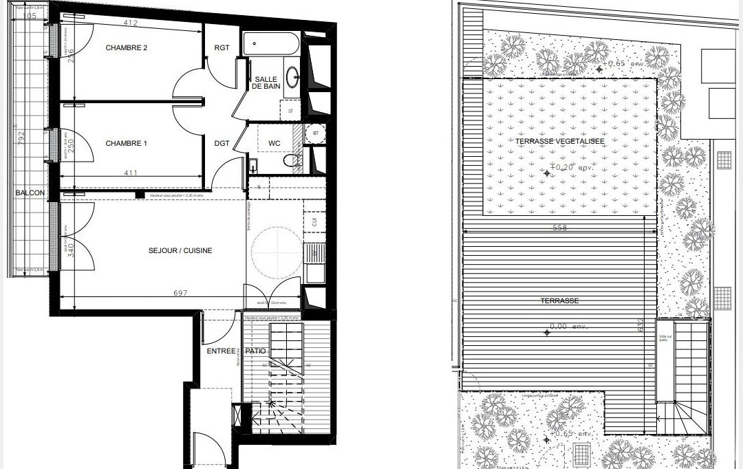
Logement situé au cur du quartier Jules Joffrin - entre trois stations de métro et à 300 mètres de la mairie du 18e. Vue sur les toits du Sacré-Cur. Ce 3P de 64m2 - idéal pour une famille ou un couple - comprend : Un séjour lumineux exposé OUEST - une cuisine ouverte - deux chambres confortables - une salle de bain et un WC. Agencement optimisé sans perte d'espace TERRASSE et JARDIN de 52m2 sur le toit - un havre de paix avec une vue sur les toits de Paris. Plus d'informations sur demande - Mentions légales : Proposé à la vente à 1225000 Euros (honoraires à la charge du vendeur) - LOGER 9 - - Pour plus d'informations, contactez notre agence au 06 51 08 30 93
Caractéristiques annonce Bnt166049
NC
NC
** Conseiller immobilier
Annonce ID166049
Vente Appartement P3 3P toit terrasse - magnifique vue
PARIS 18ème 3 pieces 64 m2
1 225 000 €

Logement situé au cur du quartier Jules Joffrin - entre trois stations de métro et à 300 mètres de la mairie du 18e. Vue sur les toits du Sacré-Cur. Ce 3P de 64m2 - idéal pour une famille ou un couple - comprend : Un séjour lumineux exposé OUEST - une cuisine ouverte - deux chambres confortables - une salle de bain et un WC. Agencement optimisé sans perte d'espace TERRASSE et JARDIN de 52m2 sur le toit - un havre de paix avec une vue sur les toits de Paris. Plus d'informations sur demande - Mentions légales : Proposé à la vente à 1225000 Euros (honoraires à la charge du vendeur) - LOGER 9 - - Pour plus d'informations, contactez notre agence au 06 51 08 30 93
Caractéristiques | |
---|---|
Surface hab. | 64 m2 |
Nombre de pièces | 3 |
Nombre de chambres | 2 |
Niveau/étage | 6/7 |
Chauffage | Aucun |
Extérieurs | Terrasse de 68 m2 |
Exposition | Sud Ouest |